Mieszkanie bez obciążeń = bezpieczny zakup bez niespodzianek.
Mieszkanie o powierzchni i funkcjonalności szeregowca. Topowa lokalizacja!
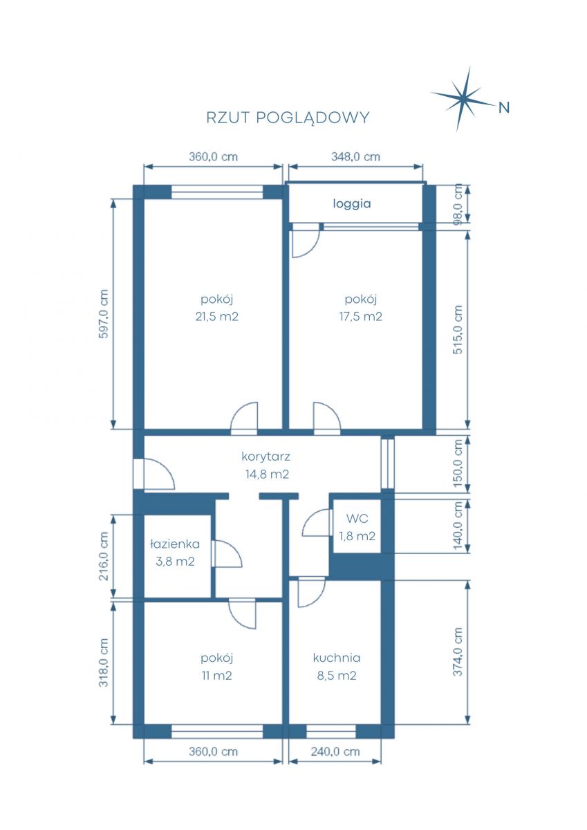
Na sprzedaż duże, jasne mieszkanie trzypokojowe na Ratajach. Mieszkanie znajduje się w wysokim bloku na os. Oświecenia 57. Ma duży potencjał własnej aranżacji dzięki świetnemu, ustawnemu układowi, który charakteryzuje się przestronnymi pokojami i dużymi przestrzeniami na głębokie szafy na jasnym korytarzu, który jest doświetlony naturalnym światłem z dużego okna.
To świetna propozycja dla rodziny lub jako zakup inwestycyjny (realna możliwość zmiany układu na 4 pokoje). Do mieszkania przynależy piwnica.
MIESZKANIE
Położone jest na 7. piętrze w bloku zbudowanym w latach 80tych. Składa się z dużego salonu wielkości kawalerki (z wyjściem na zachodni balkon), ogromnej sypialni tej samej wielkości, drugiej sypialni, kuchni, jadalni, toalety z prysznicem i oddzielnego WC.
Mieszkanie jest dwustronne (wschód-zachód) - to zapewnia dobrą wentylację, dużą ilość światła wpadającego przez duże okna oraz optymalną temperaturę mieszkania. Dodatkowe oświetlenie mieszkania zapewnia okno w korytarzu (rozwiążanie niespotykane w większości mieszkań).
LOKALIZACJA
Rataje
Stan mieszkania: do remontu
Opis lokalu (powierzchnie pomieszczeń widoczne na rzucie mieszkania):
Mieszkanie o powierzchni 77,2 m2 składa się z:
• dużego salonu z wyjściem na balkon
• przestronnej sypialni
• standardowej sypialni
• oddzielnej jasnej kuchni
• oddzielnej jasnej kuchni z oknem
• łazienki z prysznicem
• oddzielnego WC
• przestronnego korytarza z szafami w zabudowie
Parking
Osiedle nie jest objęte strefą płatnego parkowania - dostępne są bezpłatne miejsca parkingowe na osiedlu, w tym na parkingu tuż pod blokiem.
W bliskiej odległości:
• Rondo Rataje - 15 minut pieszo
• galeria Posnania - 15 minut pieszo
• market spożywczy - 5 minut pieszo
• apteka - 5 minut pieszo
• szkoła podstawowa - 3 minuty (300 m)
• Termy Maltańskie - 20 minut (1,5 km)
• przedszkole - 15 minut pieszo (1 km)
Cena: 719.000 PLN
Zapraszam na prezentację i do składania swoich ofert cenowych.
__________________________________________
Możliwość wyboru dowolnego notariusza.
Oferuję wsparcie przy załatwianiu kredytu hipotecznego - współpracuję z zaufanymi, niezależnymi od banków doradcami finansowymi, którzy wybiorą spersonalizowaną i najbardziej korzystną ofertę kredytu.
__________________________________________
Informacja dla pośredników - współpracujemy przy każdej ofercie
Oferta na wyłączność.
719 000,00 PLN (9 313,47 PLN)
JASNE MIESZKANIE | PANORAMA MIASTA | 3-STRONNE
Mieszkanie na sprzedaż,
Poznań, Oświecenia
Dane szczegółowe
- Typ transakcji: sprzedaż
- Typ nieruchomości: Mieszkanie
- Lokalizacja: Poznań Rataje, Oświecenia
- Powierzchnia:77,20 m2
- Liczba pokoi: 3
- Rok budowy: 1980
- Piętro: 7 z 16
- Numer oferty: 34964548013
- Cena: 719 000,00 PLN
- Cena za m2: 9 313,47 PLN
Kontakt z agentem: Białe Lwy - Nieruchomości
Białe Lwy - Nieruchomości
Opis nieruchomości
Mapa
Kontakt z agentem
Białe Lwy - Nieruchomości