Na sprzedaż mieszkanie 3 pokojowe położone przy ul. Na Zakolu Wisły (Nowohucka, Saska) w rejonie Dąbia/Podgórza zaledwie 7 min. samochodem do ronda Grzegórzeckiego.
W pobliżu znajduje się Port Płaszów, a dalej tereny zielone ciągnące się przez całe zakole Wisły. Jest tu dużo terenu do spacerowania, czy biegania. Zakupy najwygodniej zrobisz w M1 (Auchan), na Dąbiu (Biedronka), bądź Płaszowie przy ul. Koszykarskiej (Lewiatan). Tutaj też znajduje się Szkoła Podstawowa nr 47.
Bezpośrednio na osiedlu mieści się m.in. klinika Vistula Clinic, oraz Publiczne Przedszkole Hop Kids.
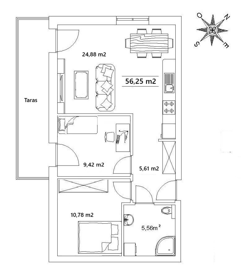
Oferowane mieszkanie ma powierzchnię całkowitą 56,3 m2, na którą składają się następujące pomieszczenia:
- Salon z aneksem kuchennym z wyjściem na duży balkon. Zabudowa meblowa na wymiar, pełne wyposażenie: piekarnik, zmywarka, płyta indukcyjna, lodówka.
- Sypialnia - mieści wygodne, duże łóżko 160x200 oraz przestronną szafę,
- Drugi pokój - również z wyjściem na balkon, obecnie zaaranżowany jako gabinet do pracy,
- Łazienka w uniwersalnej glazurze, z wanną ze szklanym parawanem i miejscem do przechowywania,
- Przedpokój - duża, zabudowana szafa na odzież wierzchnią.
Słowa klucze to:
- Staranne i nowoczesne wykończenie, bardzo dobrej jakości materiałami,
- Duże, bardzo wygodne miejsce w garażu podziemnym - ponad 18 m2,
- 3/7 piętro,
- Cichobieżna winda,
- Nowoczesne budownictwo,
- Tereny zielone.
Do mieszkania przynależy szerokie i długie miejsce w garażu podziemnym. W razie potrzeby swobodnie pomieści garażowego boxa (np. Magic Box) spełniając funkcję przechowywania.
CENA:
865 000 PLN + 70 000 PLN miejsce postojowe (ponad 18 m2!).
Zapraszam na prezentację. Warto zobaczyć tą nieruchomość.
865 000,00 PLN (15 364,12 PLN)
Na Zakolu Wisły |56 m2 | 3 pokoje TARAS GARAŻ
Mieszkanie na sprzedaż,
Kraków, Na Zakolu Wisły
Dane szczegółowe
- Typ transakcji: sprzedaż
- Typ nieruchomości: Mieszkanie
- Lokalizacja: Kraków Podgórze, Na Zakolu Wisły
- Powierzchnia:56,30 m2
- Liczba pokoi: 3
- Rok budowy: 2016
- Piętro: 3 z 7
- Numer oferty: 34964550339
- Cena: 865 000,00 PLN
- Cena za m2: 15 364,12 PLN
Kontakt z agentem: Białe Lwy - Nieruchomości
Białe Lwy - Nieruchomości
Opis nieruchomości
Mapa
Kontakt z agentem
Białe Lwy - Nieruchomości