Atuty nieruchomości w skrócie !
| 63,3 mkw | 4 pokoje | balkon | 4 piętro | budynek z 2000 r. | winda | po generalnym remoncie 2024 | komórka 4,53 mkw | 8 min do metra Kabaty | przy parku i lesie |
Mieszkanie
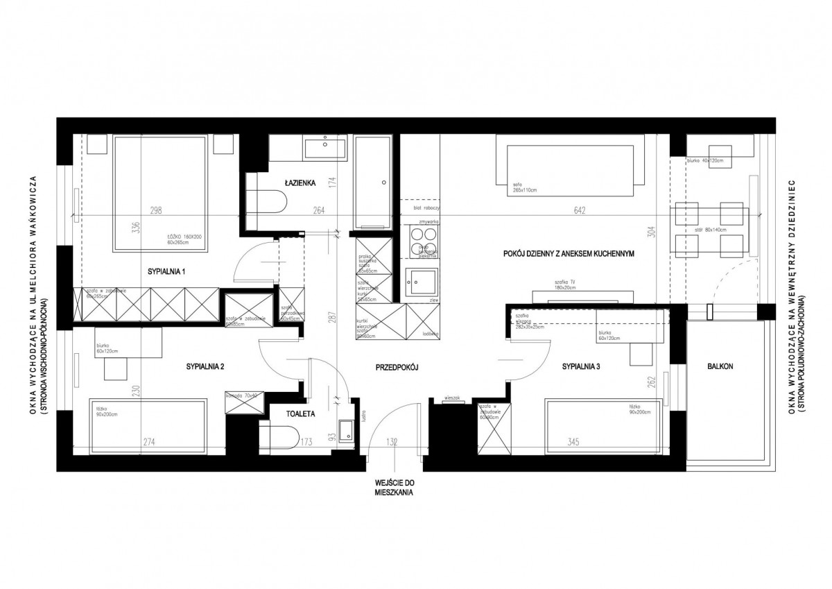
Przedstawiam funkcjonalne, czteropokojowe mieszkanie o powierzchni 63,5 mkw, położone na 4. piętrze w budynku z 2001 roku z windą, na warszawskim Ursynowie - róg al. KEN oraz ul. Jeżewskiego.
To idealna propozycja dla rodziny z dziećmi lub osób, które potrzebują dodatkowego pokoju do pracy zdalnej. Lokal jest cichy, bardzo dobrze doświetlony i posiada dwustronną ekspozycję:
• dwie sypialnie - wschód (ul. Wańkowicza)
• salon oraz trzecia sypialnia - zachód / południowy zachód (wewnętrzny dziedziniec)
Mieszkanie przeszło generalny remont w 2024 roku - wymieniono instalacje wodno-kanalizacyjne i elektryczne, wykonano nowe podłogi, gładzie oraz zabudowy stolarskie na wymiar. Projekt został przygotowany we współpracy z architektem.
Najważniejsze atuty:
Balkon
Dwustronna ekspozycja - mieszkanie słoneczne i przewiewne
63,5 m² bardzo funkcjonalnej przestrzeni dla rodziny
4 niezależne pokoje
Generalny remont w 2024 roku - gotowe do wprowadzenia
Duża komórka lokatorska (4,53 m²) na poziomie -1
8 minut spacerem do stacji metra Kabaty
Bliskość terenów zielonych - Park przy Bażantarni i Las Kabacki
Układ pomieszczeń:
• pokój dzienny z aneksem kuchennym 20,5 m²
• sypialnia 1 - 10 m²
• sypialnia 2 - 8,5 m²
• sypialnia 3 - 8 m²
• łazienka - 4,5 m²
• osobne WC - 1,5 m²
• korytarz - 8,5 m²
Do mieszkania przynależy komórka lokatorska o powierzchni 4,53 m².
Standard i wyposażenie
Podłoga wykończona drewnianą deską berlinecką oraz wysokiej jakości płytkami. W całym mieszkaniu wykonano zabudowy meblowe na zamówienie, maksymalnie wykorzystujące przestrzeń.
Kuchnia - w pełni wyposażona w sprzęt AGD: lodówka z zamrażarką, płyta indukcyjna, piekarnik, okap, zmywarka.
Salon - duża rozkładana kanapa, telewizor Samsung „The Frame” z ukrytym okablowaniem, komoda RTV, stół z krzesłami oraz miejsce do pracy (biurko).
Sypialnia 1 - zabudowa szaf (240 cm), łóżko 160x200 cm.
Sypialnia 2 - szafa w zabudowie (80 cm), komoda z lustrem, biurko, łóżko 90x200 cm.
Sypialnia 3 - szafa w zabudowie, szafki ścienne, biurko oraz łóżko.
Przedpokój - pojemne zabudowy obejmujące miejsce na odzież wierzchnią, szafę gospodarczą oraz zabudowę na pralkę i suszarkę.
Łazienka - wanna z kolumną prysznicową, duża umywalka, WC w zabudowie, lustro oraz pojemne szafki.
Osobne WC - WC w zabudowie, mała umywalka i dodatkowe szafki.
Mieszkanie sprzedawane z pełnym wyposażeniem widocznym na zdjęciach (do potwierdzenia z właścicielem).
Budynek
Budynek z 2001 roku wyposażony w windę. Zadbana klatka schodowa oraz spokojne, rodzinne sąsiedztwo. Wewnątrz osiedla znajduje się także plac zabaw dla dzieci.
Lokalizacja
Nieruchomość znajduje się na warszawskim Ursynowie, w rejonie al. Komisji Edukacji Narodowej, w bezpośrednim sąsiedztwie stacji metra Kabaty - około 8 minut spacerem.
W okolicy liczne sklepy, restauracje, punkty usługowe, szkoły, przedszkola i żłobki.
Po sąsiedzku budynku znajduje się Park przy Bażantarni natomiast w odległości 15 minut spacerem dotrzeć można do Lasu Kabackiego, oba te tereny są idealne na spacery, rekreację i aktywność sportową.
Informacje dodatkowe
Czynsz administracyjny: ok. 850 zł (przy 3 osobach).
Jeśli mają Państwo pytania, zapraszam do kontaktu telefonicznego. W przypadku braku możliwości odebrania połączenia - oddzwonię najszybciej jak to możliwe.
1 518 176,00 PLN (23 998,99 PLN)
4 pokoje | obok metro kabaty | przy bażantarni |
Mieszkanie na sprzedaż,
Warszawa, Aleja Komisji Edukacji Narodowej
Dane szczegółowe
- Typ transakcji: sprzedaż
- Typ nieruchomości: Mieszkanie
- Lokalizacja: Warszawa Ursynów, Aleja Komisji Edukacji Narodowej
- Powierzchnia:63,26 m2
- Liczba pokoi: 4
- Rok budowy: 2001
- Piętro: 4 z 5
- Numer oferty: 34964545846
- Cena: 1 518 176,00 PLN
- Cena za m2: 23 998,99 PLN
Kontakt z agentem: Białe Lwy - Nieruchomości
Białe Lwy - Nieruchomości
Opis nieruchomości
Mapa
Kontakt z agentem
Białe Lwy - Nieruchomości