Mieszkanie trzypokojowe z zabudowana loggią i oddzielną garderobą na warszawskim Bródnie w dzielnicy Targówek.
Całkowita powierzchnia 60,6 ㎡ z pomieszczenie przynależnym piwnicą o powierzchni 1,7m2.
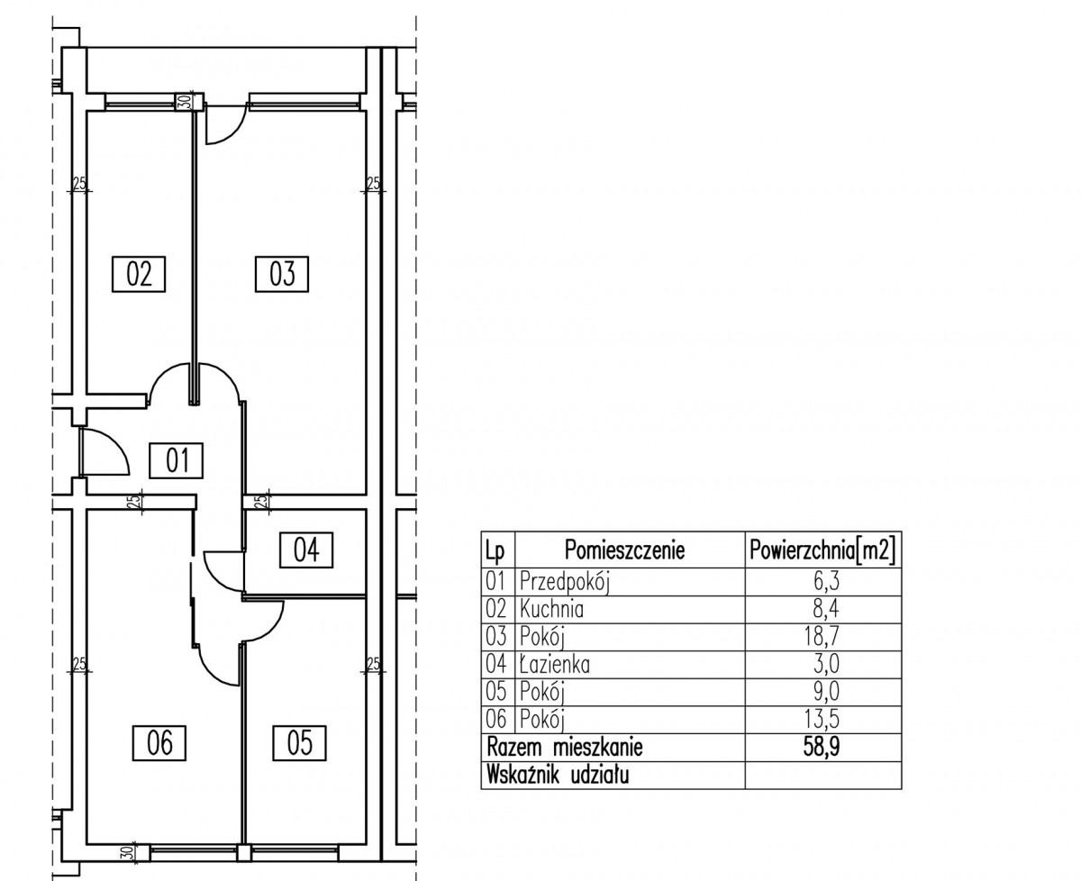
Powierzchnia mieszkania to 58,9 m2 + zabudowana loggia około 3 m2
Kable światłowodowe są dostępne w całym budynku dla szybkiego dostępu do Internetu. Duży pokój z wyjściem na przyjemna zabudowaną loggię z widokiem na stadion. Widna kuchnia z oknem.
Rozkład pomieszczeń i powierzchnia w przybliżeniu
Pokój 18,7 m2 z wyjściem na loggię
Pokój 10 m2
Pokój 9 m2
Kuchnia 8,4 m2
Łazienka 3 m2
Garderoba 3,2 m2
Hall 6,3 m2
Na podłodze mozaika i terakota.
Ekspozycja okien na stronę wschodnią i zachodnią.
Mieszkanie wymaga remontu.
Istnieje wiele możliwości aranżacji tego mieszkania. Garderoba może być również przystosowana na gabinet do pracy. Istnieje możliwość zaadoptowania miejsca na dodatkową toaletę z wc w pobliży łazienki.
Za to blok jest bardzo dobrze utrzymany, wyremontowane klatki schodowe, nowe windy, wymienione piony wodnokanalizacyjne.
W budynku znajduje się zamykane pomieszczenie na rowery.
Forma własności:
Odrębna nieruchomość z księga wieczystą. Mieszkanie można zakupić w kredycie.
Lokalizacja:
W środku osiedla, cicho i zielono.
Ale okolica jest bardzo dobrze skomunikowana. W pobliżu stacji metra Kondratowicza oddalona o 2 przystanki autobusowe.
W pobliżu znajduje się wiele miejsc parkingowych. Teren z dużą ilością zieleni. W pobliżu Las Bródnowski, Park Bródnowski, basen, korty tenisowe, boiska, sklepy.
Przystanki wielu linii autobusowych (200 m do pętli autobusowej). Nie zajmie nam też dużo czasu dotarcie do przystanku tramwajowego
Lokalizacja mieszkania pozwala także na realizacje podstawowych potrzeb mieszkańców. Jest to oferta dla rodzin z dziećmi; w promieniu kilkuset metrów są przedszkola i trzy szkoły podstawowe. Bez problemu zrobimy zarówno mniejsze zakupy (Żabka, Biedronka, piekarnia, drogerie), jak i większe zakupy (CH Targówek, Factory Annopol, Homepark Targówek). Dodatkowo dzięki bliskiemu położeniu basenu oraz kompleksu boisk sportowych jest to też doskonała oferta dla osób aktywnych fizycznie.
695 000,00 PLN (11 468,65 PLN)
3-pokojowe mieszkanie z garderobą
Mieszkanie na sprzedaż,
Warszawa, Turmoncka
Dane szczegółowe
- Typ transakcji: sprzedaż
- Typ nieruchomości: Mieszkanie
- Lokalizacja: Warszawa Targówek, Turmoncka
- Powierzchnia:60,60 m2
- Liczba pokoi: 3
- Rok budowy: 1971
- Piętro: 4 z 10
- Numer oferty: 34964544973
- Cena: 695 000,00 PLN
- Cena za m2: 11 468,65 PLN
Kontakt z agentem: Białe Lwy - Nieruchomości
Białe Lwy - Nieruchomości
Opis nieruchomości
Wirtualny spacer po nieruchomości
Mapa
Kontakt z agentem
Białe Lwy - Nieruchomości