Zamieszkaj w miejscu, które łączy ciszę kameralnej dzielnicy z bliskością tętniącego życiem centrum i nadmorskiej promenady.
Szukasz przestrzeni, charakteru i stylu, który nie poddaje się chwilowym modom? Zapoznaj się z ofertą sprzedaży tego przestronnego mieszkania zlokalizowane w jednej z najbardziej klimatycznych części Świnoujścia - przy ulicy Wyspiańskiego tuż przy Parku Chopina.
Mieszkanie:
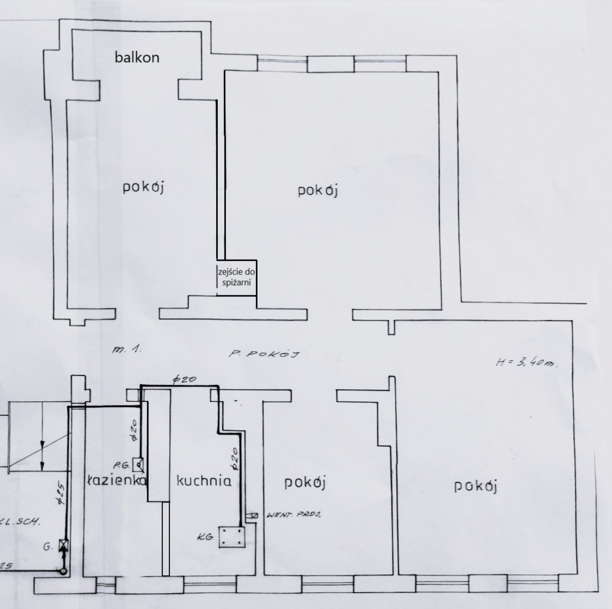
* powierzchnia 98 m2
* wysokość 3,40m, przedpokój lekko obniżony
* parter - okna od ulicy (południowy zachód) i od podwórza (północny wschód)
* 4 pokoje, widna kuchnia, przestronny korytarz, łazienka
* kuchnia po remoncie - nowoczesne, funkcjonalne meble, lodówka wolnostojąca, kuchenka gazowa z piekarnikiem elektrycznym, zmywarka, doprowadzona trzecia faza (tzw. siła)
* 2 piwnice - jedna z bezpośrednim wejściem z mieszkania, która może służyć jako domowa piwniczka na wino/spiżarnia i druga z wejściem z klatki schodowej - obecnie wykorzystywana jako pralnio - suszarnia i składzik
* balkon
* zachowana oryginalna stolarka drzwiowa
* nowa (!) elektryka w całym mieszkaniu
* CO i ciepła woda z kotła gazowego dwubiegowego
* okna PCV w bardzo dobrym stanie
* drzwi wejściowe antywłamaniowe
* ocieplone podłogi - w korytarzu kafle, na podłogach panele dąb
* elektryczne rolety antywłamaniowe
* łazienka do remontu
Budynek:
* kameralna, dwupiętrowa kamienica w otoczeniu zieleni
* bardzo dobrze utrzymana klatka schodowa po generalnym remoncie sprzed 2 lat, kiedy wymieniono również elektrykę w budynku
* miejsca parkingowe dla mieszkańców na podwórzu, którego teren należy do Wspólnoty
* miejsca parkingowe wzdłuż ulicy - bez strefy płatnego parkowania
* drzwi wejściowe do budynku z podjazdem przystosowanym dla osób niepełnosprawnych
Okolica:
Świnoujście to popularna miejscowość wypoczynkowa i turystyczna, oddalona zaledwie 100 km od Szczecina i 20 km od Międzyzdrojów, zaś oddanie do użytku tunelu łączącego lewy brzeg przybliżyło ją jeszcze bardziej. Nie bez znaczenia dla regionu jest przeprawa promowa do Skandynawii oraz lotnisko w Heringsdorf (13 km).
Mieszkanie znajduje się w kameralnej kamienicy tuż przy Parku Chopina. Blisko sklepy, przystanki komunikacji miejskiej, szkoły i tereny zielone. Cicha i zadbana okolica z szybkim dojazdem zarówno do centrum jak i plaży. Żłobek, przedszkole, plac zabaw, liceum znajdują się w odległości 200 m; osiedlowy sklepik, siłownia i sala sportowa - 400 m; sklep Stokrotka i Galeria Corso - 600 m; Park Zdrojowy - 1 km. Plaża w Świnoujściu oddalona jest o zaledwie 2 km, czyli około 3 minuty samochodem lub 10 minut pieszo. W pobliżu znajdziemy przystanki autobusowe linii 2, 9, B.
Ważne:
* niski czynsz administracyjny - 450 zł
* prąd i gaz wg zużycia
* w budynku dostępna oferta TV kablowej oraz internet
* 2 piwnice
* miejsca postojowe pod blokiem bez strefy PP oraz możliwość parkowania w podwórzu
* drzwi wejściowe do budynku z podjazdem przystosowanym dla osób niepełnosprawnych
* możliwość pozostawienia mebli
1 050 000,00 PLN (10 714,29 PLN)
Rozkładowe 4 pokoje przy parku do wprowadzenia
Mieszkanie na sprzedaż,
Świnoujście, Stanisława Wyspiańskiego
Dane szczegółowe
- Typ transakcji: sprzedaż
- Typ nieruchomości: Mieszkanie
- Lokalizacja: Świnoujście, Stanisława Wyspiańskiego
- Powierzchnia:98 m2
- Liczba pokoi: 4
- Rok budowy: 1920
- Piętro: 0 z 2
- Numer oferty: 34964534602
- Cena: 1 050 000,00 PLN
- Cena za m2: 10 714,29 PLN
Kontakt z agentem: Białe Lwy - Nieruchomości
Białe Lwy - Nieruchomości
Opis nieruchomości
Mapa
Kontakt z agentem
Białe Lwy - Nieruchomości