Na sprzedaż: 5 kawalerek inwestycyjnych - Ścisłe Centrum, ul. Śniadeckich, Poznań
Cena: 1 450 000 PLN
Powierzchnia całkowita: 136 m²
Powierzchnia użytkowa: 126 m²
Piwnica: 9,45 m²
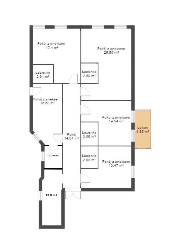
Przedmiotem sprzedaży jest wyjątkowa nieruchomość inwestycyjna położona w samym centrum Poznania - przy ul. Śniadeckich.
Lokal o łącznej powierzchni 136 m² został podzielony na 5 kompletnie wyposażonych, samodzielnych kawalerek, każda z własną kuchnią i łazienką.
Wszystkie jednostki są obecnie wynajęte i generują stabilny, przewidywalny dochód, a obsługą najmu zajmuje się profesjonalna firma Mzuri.
Idealna inwestycja dla osób szukających gotowca inwestycyjnego.
8 lat temu wykonano generalny remont całego lokalu:
- nowe instalacje elektryczne
- nowe instalacje wodne
- nowe instalacje centralnego ogrzewania
- wymieniany jest piec gazowy oraz cała instalacja przyłączeniowa
Nieruchomość znajduje się w jednej z najlepiej skomunikowanych części miasta:
2 minuty do Parku Wilsona i Palmiarni
3 minuty do przystanku tramwajowego
5 minut pieszo na Międzynarodowe Targi Poznańskie
Wokół pełna infrastruktura: sklepy, restauracje, uczelnie, komunikacja
1 450 000,00 PLN (11 507,94 PLN)
5 samodzielnych kawalerek
Mieszkanie na sprzedaż,
Poznań, Śniadeckich
Dane szczegółowe
- Typ transakcji: sprzedaż
- Typ nieruchomości: Mieszkanie
- Lokalizacja: Poznań Łazarz, Śniadeckich
- Powierzchnia:126 m2
- Liczba pokoi: 5
- Piętro: 1 z 3
- Numer oferty: 34964535884
- Cena: 1 450 000,00 PLN
- Cena za m2: 11 507,94 PLN
Kontakt z agentem: Białe Lwy - Nieruchomości
Białe Lwy - Nieruchomości
Opis nieruchomości
Mapa
Kontakt z agentem
Białe Lwy - Nieruchomości