Na sprzedaż wyjątkowe mieszkanie w stanie deweloperskim, położone w nowoczesnym budynku apartamentowym w jednej z najbardziej pożądanych lokalizacji na Półwyspie Helskim! Inwestycja "Czarna Perła" charakteryzująca się nietuzinkowym designem.
Szczegóły oferty:
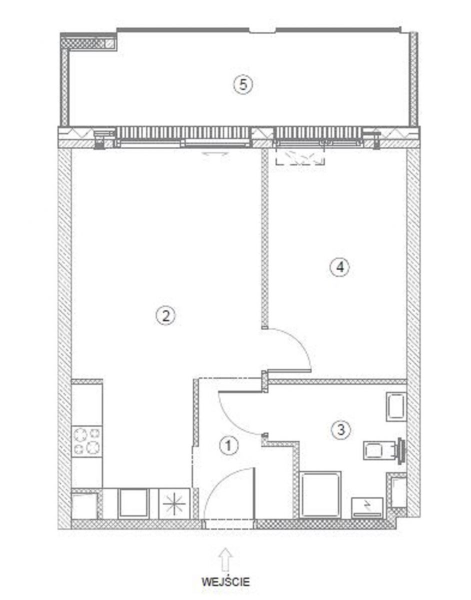
- Powierzchnia: 43,20 m²,
- Piętro: 1 z 3,
- Stan: deweloperski - możliwość zorganizowania wykończenia pod klucz,
Układ:
- Pokój dzienny z aneksem kuchennym,
- Sypialnia,
- Przestronny hall,
- Łazienka,
- Loggia (zadaszony balkon) z widokiem na basen i wydmy,
Lokalizacja:
Ulica Wydmowa 27 - spokojna część Helu tuż przy stacji PKP, w otoczeniu zieleni i w bliskiej odległości od plaży oraz portu. Doskonałe miejsce do wypoczynku z dala od miejskiego zgiełku, a jednocześnie z szybkim dostępem do atrakcji turystycznych.
Atuty nieruchomości:
- Basen dla mieszkańców z podgrzewaną wodą (28°C),
- Centralne ogrzewanie podłogowe w całym mieszkaniu,
- budynek ogrzewany ekologicznym i ekonomicznym źródłem ciepła - pompą ciepła,
- Cudowny widok na wydmy i zieleń,
Informacje dodatkowe:
- Lokal stanowiący odrębną własność - możliwość posiłkowania się kredytem hipotecznym,
- Czynsz administracyjny ok. 750 zł,
- Do mieszkania przynależy miejsce postojowe w garażu podziemnym a cenie - 50 000 zł,
Zapraszam za prezentację celem obejrzenia tej nietuzinkowej nieruchomości.
Wskaźnik rocznego zapotrzebowania na energię użytkową (EU): 75.890 kWh/(m2 · rok).
Wskaźnik rocznego zapotrzebowania na energię końcową (EK): 22.400 kWh/(m2 · rok).
Wskaźnik rocznego zapotrzebowania na nieodnawialną energię pierwotną (EP): 55.900 kWh/(m2 · rok).
Jednostkowa wielkość emisji CO2 (E CO2): 0.024 t CO2/(m2 · rok).
Udział odnawialnych źródeł energii w rocznym zapotrzebowaniu na energię końcową (U OZE): 57.52 %.
899 000,00 PLN (20 810,19 PLN)
2-pok. mieszkanie w cudownej lokalizacji na Helu.
Mieszkanie na sprzedaż,
Hel, Wydmowa
Dane szczegółowe
- Typ transakcji: sprzedaż
- Typ nieruchomości: Mieszkanie
- Lokalizacja: Hel, Wydmowa
- Powierzchnia:43,20 m2
- Liczba pokoi: 2
- Rok budowy: 2024
- Piętro: 1 z 3
- Numer oferty: 34964536542
- Cena: 899 000,00 PLN
- Cena za m2: 20 810,19 PLN
Kontakt z agentem: Białe Lwy - Nieruchomości
Białe Lwy - Nieruchomości
Opis nieruchomości
Mapa
Kontakt z agentem
Białe Lwy - Nieruchomości