598 000,00 PLN (4 721,00 PLN)

Wyjątkowy lokal w galerii w centrum ROI 9%

Lokal handlowy/usługowy na sprzedaż,
Ostróda, Jana Pawła II

Kontakt z agentem: Białe Lwy - Nieruchomości
Białe Lwy - Nieruchomości
Opis nieruchomości

Rewelacyjny Lokal w Galerii Mazurskiej z najemcą

ZAPRASZAM DO ZŁOŻENIA OFERTY

Atrakcyjnie położony lokal z prywatnym wyjściem na zewnątrz w Galerii Mazurskiej

Lokalizacja:
Galeria Mazurska - największa galeria w centrum Ostródy, położona przy ruchliwej ulicy, blisko przystanki komunikacji miejskiej, stacja kolejowa, bulwary nad jeziorem. Pełna infrastruktura piesza wraz punktami spotkań i rekreacji.

„Galeria Mazurska” to około 50 sklepów i ponad 17 000 m2 powierzchni. Znajduje się tu także Aquapark, duży supermarket i kręgielnia. Galeria przez cały rok przyciąga rzesze mieszkańców i turystów. Na dolnym poziomie znajduje się 180 miejsc parkingowych i więcej na ulicach

Nieruchomości:
Lokal zlokalizowany jest na poziomie galerii głównej, bezpośrednio przy jednych z głównych drzwi galerii. Przestrzeń jest dobrze zlokalizowana na krzyżówce dwóch alejek i posiada duże okna z dwóch stron z ponad standardową możliwością ekspozycji reklamy oraz dodatkowo dużą witrynę wychodzące na ulicę z drzwiami zewnętrznymi. Prywatne wyjście na ulicę daje dodatkowe możliwości otwarcia lokalu poza godzinami działania galerii.
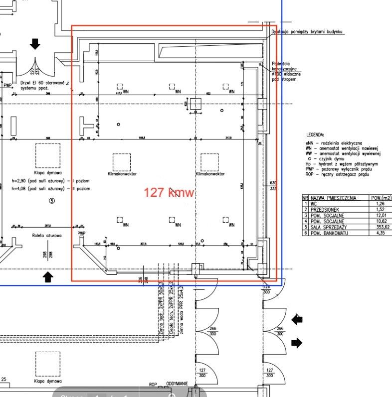
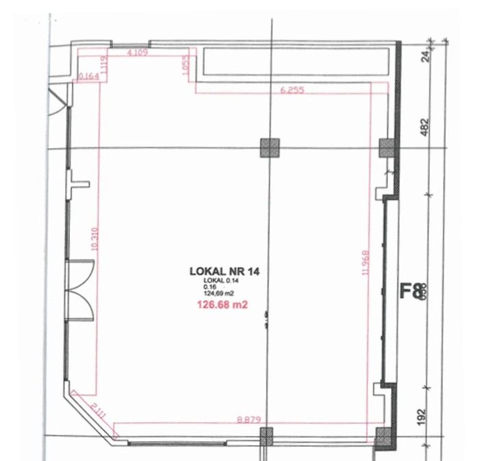
Całkowita powierzchnia wynosi 127 m2. Można w nim prowadzić dowolną działalność gospodarczą. Otwarta przestrzeń pozwala na dowolną adaptację.
Ogrzewanie, nawiewne z klimakonwektorów, (funkcja chłodzenia i ogrzewania)

Status własności: Pełna własność z KW wraz z prawem własności w gruncie na którym stoi galeria.
Lokal jest wynajmowany, możliwość przejęcia umowy najmu.

LICYTACJA OD 625000 ZŁ

Zapraszam do kontaktu


Powyższa oferta ma charakter informacyjny i nie stanowi oferty handlowej w rozumieniu art. 66 §1 Kodeksu Cywilnego.

Plany Nieruchomości
Mapa
Kontakt z agentem

Białe Lwy - Nieruchomości

Białe Lwy - Nieruchomości
Nieprawidłowy adres E-mail

Strona korzysta z plików cookie w celu realizacji usług zgodnie z Polityką prywatności. Możesz określić warunki przechowywania lub dostępu do cookie w Twojej przeglądarce.