1 750 000,00 PLN (553,80 PLN)

Widokowa pod domki i pensjonat, media, plan

Działka (Budowlana) na sprzedaż,
Niedzica, Osiedle Pod Taborem

Kontakt z agentem: Białe Lwy - Nieruchomości
Białe Lwy - Nieruchomości
Opis nieruchomości

WYJĄTKOWA OFERTA TYLKO U NAS!

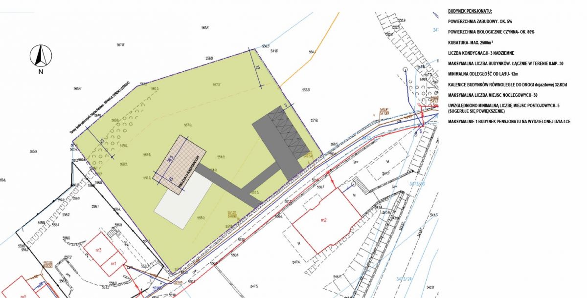
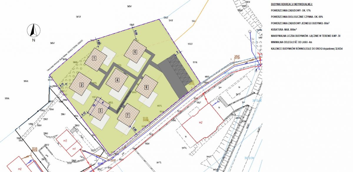
Gotowe 4 koncepcje zagospodarowania terenu: domki pod wynajem, dwie koncepcje na pensjonat oraz dom jednorodzinny.

Działka (31,60a) widokowa w Niedzicy z panoramą na góry w cichej i spokojnej okolicy pod lasem.

Zgodnie z miejscowym planem przedmiotowa nieruchomość położona jest w obszarze oznaczonym symbolem 8.MP - tereny zabudowy pensjonatowej.

Przeznaczenie dopuszczalne: budownictwo mieszkaniowe jednorodzinne, usługi gastronomiczne realizowane jako część wbudowana lub na zasadach określonych w ustaleniach szczegółowych.

Niedzica to malownicza miejscowość położona w południowej Polsce, w województwie małopolskim, niedaleko granicy ze Słowacją. Znajduje się tam słynny zamek Dunajec w Niedzicy, który przyciąga turystów z całego kraju i zagranicy. Działka widokowa w takiej lokalizacji oferuje niesamowite widoki na góry i otaczającą przyrodę, co może być bardzo atrakcyjne dla potencjalnych inwestorów.


W okolicy: Zamek Dunajec, Jezioro Czorsztyńskie, Zamek w Czorsztynie, Jezioro Sromowieckie, zapora wodna, trasy rowerowe, stoki narciarskie.


Z uwagi na swoje położenie, działka ta jest idealna zarówno dla osób poszukujących miejsca na prywatny dom jednorodzinny, jak i dla tych, którzy planują budowę obiektu noclegowego. Cisza i spokój oraz bliskość natury tworzą przyjazne otoczenie dla relaksu i rekreacji.

Urządzenia infrastruktury technicznej: elektrycznej, wodnej, kanalizacyjnej i teletechnicznej przebiegają od strony południowej w pasie wewnętrznej drogi dojazdowej.
Kształt zbliżony do prostokąta o wymiarach 60m x 50 m.

Cena działki: 1.750.000 pln

Zapraszam do kontaktu!


Oferta ma charakter informacyjny i nie stanowi oferty w rozumieniu kodeksu cywilnego oraz innych właściwych przepisów prawnych.


 

Film o nieruchomości
Wirtualny spacer po nieruchomości
Mapa
Kontakt z agentem

Białe Lwy - Nieruchomości

Białe Lwy - Nieruchomości
Nieprawidłowy adres E-mail

Strona korzysta z plików cookie w celu realizacji usług zgodnie z Polityką prywatności. Możesz określić warunki przechowywania lub dostępu do cookie w Twojej przeglądarce.