365 534,00 PLN (442,00 PLN)

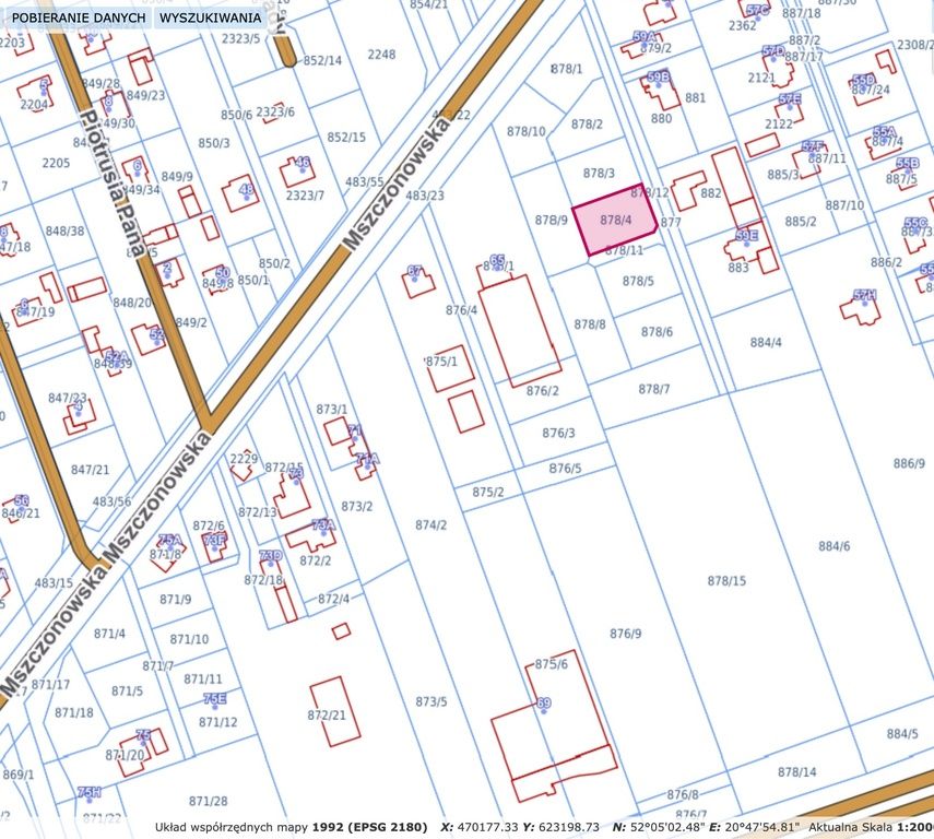
Działka budowlana Nadarzyn (nr dz. 878/4)

Działka (Budowlana) na sprzedaż,
Nadarzyn

Kontakt z agentem: Białe Lwy - Nieruchomości
Białe Lwy - Nieruchomości
Opis nieruchomości

Działka budowlano-usługowa 827 m² – Nadarzyn, pow. pruszkowski

ELANDOM Nieruchomości prezentuje do sprzedaży działkę nr 878/4 o powierzchni 827 m², położoną w Nadarzynie (gm. Nadarzyn, pow. pruszkowski), pomiędzy ul. Mszczonowską a Al. Katowicką.

Parametry działki:

  • powierzchnia: 827 m²
  • szerokość: 23,5 m
  • długość: 35 m
  • pełna własność, stan prawny uregulowany

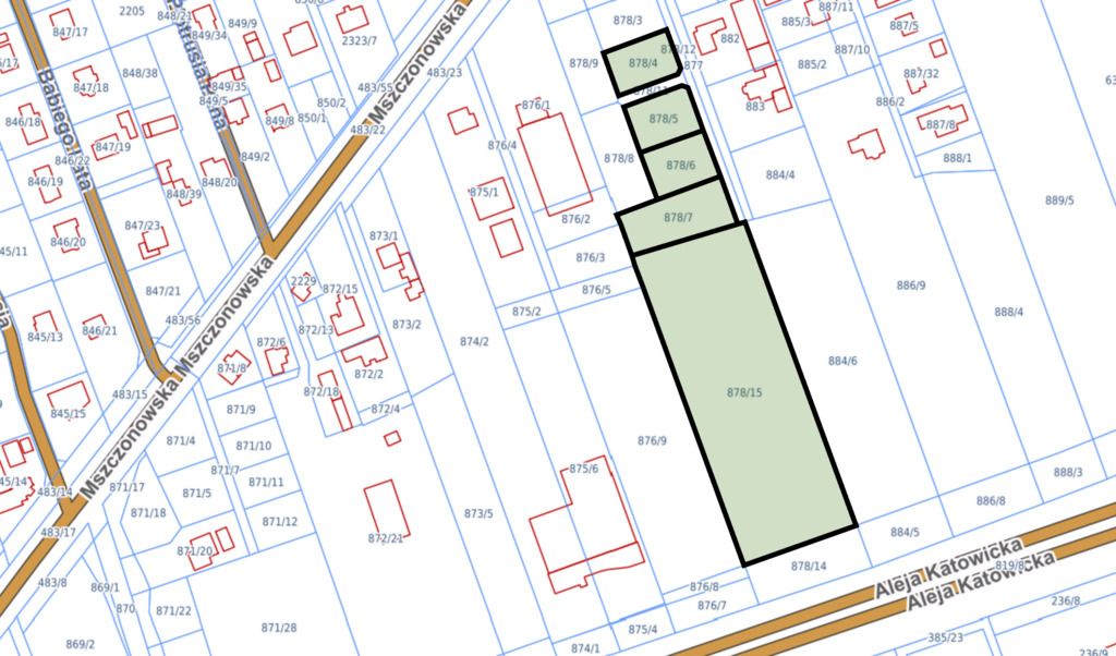
Działka oferowana jest w pakiecie z sąsiednimi parcelami (878/5, 878/6, 878/7), które stanowią odrębne oferty sprzedaży.

Przeznaczenie wg MPZP (uchwała nr XXVIII/585/2004):
  • zabudowa mieszkaniowa jednorodzinna – domy wolnostojące lub w zabudowie bliźniaczej
  • usługi towarzyszące i komercyjne (z wyłączeniem obiektów o pow. sprzedaży > 500 m², stacji paliw, warsztatów samochodowych czy masztów telefonii komórkowej)
  • przeznaczenie uzupełniające: budynki gospodarcze i garaże (do 60 m²), infrastruktura techniczna, zieleń, miejsca postojowe
Media:
  • woda, prąd, gaz – w drodze

Działka idealna pod budowę domu jednorodzinnego z funkcją usługową.

Doskonała lokalizacja przy głównych trasach – szybki dojazd do Warszawy i okolic.

Sprzedaż wyłącznie za gotówkę.

Mapa
Kontakt z agentem

Białe Lwy - Nieruchomości

Białe Lwy - Nieruchomości
Nieprawidłowy adres E-mail

Strona korzysta z plików cookie w celu realizacji usług zgodnie z Polityką prywatności. Możesz określić warunki przechowywania lub dostępu do cookie w Twojej przeglądarce.