DOM W CENIE MIESZKANIA!
Nowoczesny bliźniak pod Poznaniem - Zimin, gm. Kleszczewo
Na sprzedaż nowoczesny dom w zabudowie bliźniaczej o powierzchni 101,72 m² z działką ok. 500 m² w miejscowości Zimin, zaledwie 18 minut od ronda Rataje w Poznaniu.
Najważniejsze atuty:
4 pokoje + salon z aneksem kuchennym
2 łazienki, brak skosów na piętrze
możliwość adaptacji strychu
duże przeszklenia i jasne wnętrza
ogrzewanie podłogowe + pompa ciepła NIBE
rolety elektryczne, instalacja alarmowa, przygotowanie pod fotowoltaikę
światłowód i kanalizacja
duża działka ok. 500 m², (ogród 300 m²)
2 miejsca parkingowe przed budynkiem + opcja garażu lub budynku gospodarczego
osobna księga wieczysta
Lokalizacja:
200 m - szkoła i przedszkole
170 m - przystanek autobusowy (linia 431, 432, 488 - bezpośrednie połączenie z Poznaniem)
szybki dojazd trasami S11, S5 i A2
21 km do Poznania (ok. 18 minut do Ronda Rataje)
w sąsiednich miejscowościach - sklepy, przychodnie, punkty usługowe, żłobki i szkoły
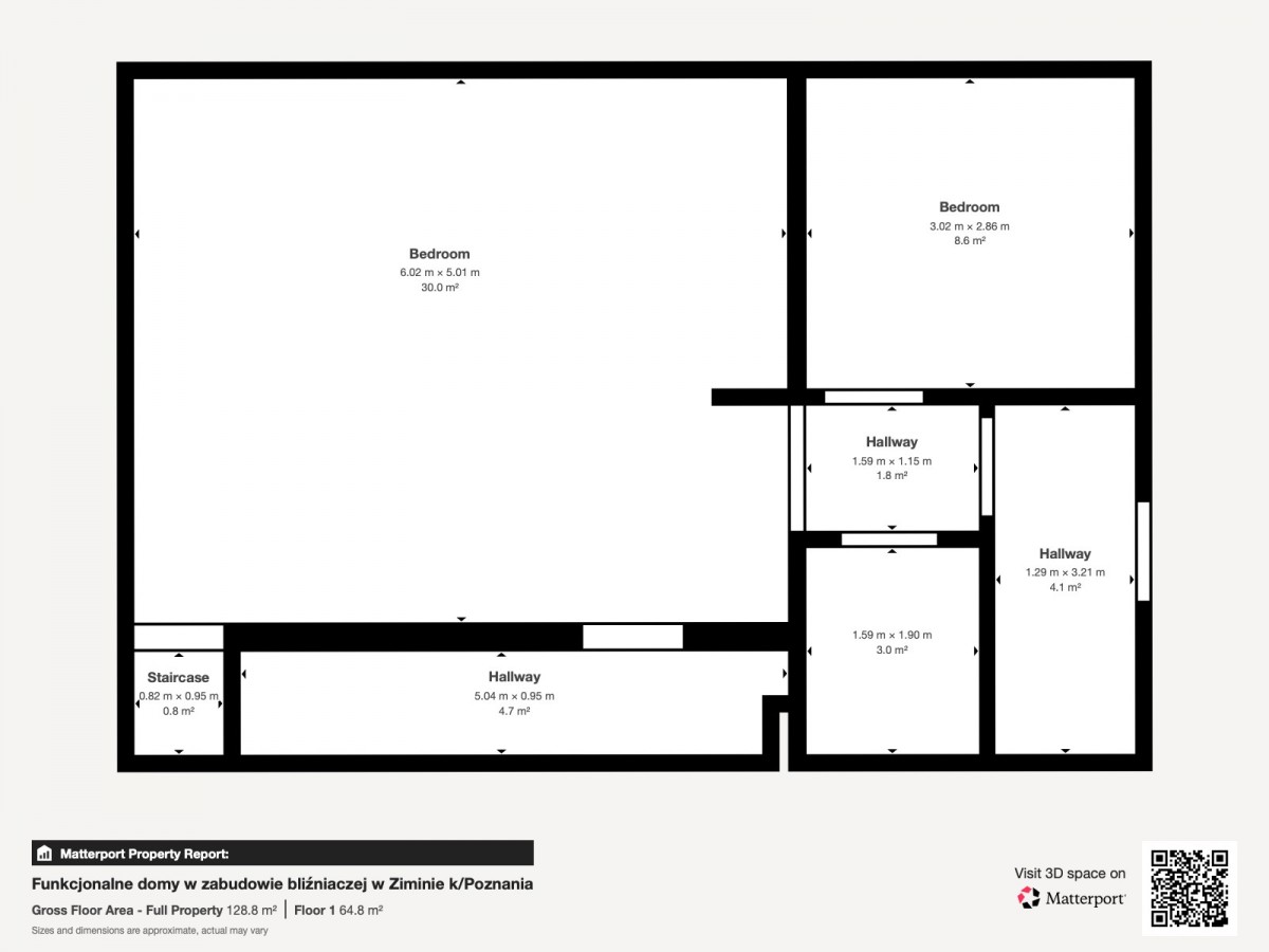
Rozkład pomieszczeń:
Parter:
salon z aneksem kuchennym - 29,60 m²
pokój - 8,15 m²
łazienka - 2,74 m²
pomieszczenie techniczne - 2,84 m²
wiatrołap - 4,44 m²
korytarz - 1,70 m²
Piętro:
sypialnia - 12,48 m² + garderoba - 5,22 m²
pokój - 10,13 m²
pokój - 10,03 m²
łazienka - 4,96 m²
korytarz - 9,77 m²
Standard wykonania:
dachówka ceramiczna, ocieplenie styropianem 20 cm
okna 3-szybowe PCV antracyt, rolety elektryczne
ogrzewanie podłogowe w całym domu
instalacja pod pompę ciepła, fotowoltaikę, alarm
solidna izolacja akustyczna między budynkami
działka ogrodzona, teren utwardzony
Zapraszam na prezentacje :)
765 000,00 PLN (7 427,18 PLN)
Zimin
Dom (Bliźniak) na sprzedaż,
Zimin
Dane szczegółowe
- Typ transakcji: sprzedaż
- Typ nieruchomości: Dom
- Lokalizacja: Zimin
- Powierzchnia:103 m2
- Liczba pokoi: 5
- Rok budowy: 2025
- Liczba pięter: 1
-
Powierzchnia działki:
500 m2
- Numer oferty: 34964524063
- Cena: 765 000,00 PLN
- Cena za m2: 7 427,18 PLN
Kontakt z agentem: Białe Lwy - Nieruchomości
Białe Lwy - Nieruchomości
Opis nieruchomości
Mapa
Kontakt z agentem
Białe Lwy - Nieruchomości