967 500,00 PLN (7 500,00 PLN)

Cisza, Zieleń i Bliskość Centrum

Dom (Szeregowy) na sprzedaż,
Mikołów

Kontakt z agentem: Białe Lwy - Nieruchomości
Białe Lwy - Nieruchomości
Opis nieruchomości

Nowoczesne Osiedle Domów Szeregowych w Mikołowie

Inwestycja Solaris to osiedle dziesięciu domów w zabudowie szeregowej zlokalizowane przy ul. Lema w Mikołowie.
To idealne miejsce dla rodzin szukających komfortu, prywatności i wygody w spokojnym, zielonym otoczeniu, a jednocześnie blisko centrum miasta.

Nowoczesna architektura i komfortowy układ

Każdy dom został zaprojektowany z myślą o funkcjonalności i estetyce.

W ofercie dostępne są trzy warianty metrażowe: 
Oferta dotyczy gotowego budynku w stanie deweloperskim.

Wariant A (A1 i A10) - 136,66 m²
Segmenty skrajne z czterema sypialniami, dwoma łazienkami, garderobą i garażem w bryle budynku.
• Wariant B (B2 i B9) - 121,45 m² 
Domy środkowe z trzema sypialniami, otwartą strefą dzienną i dużym salonem z wyjściem do ogrodu.
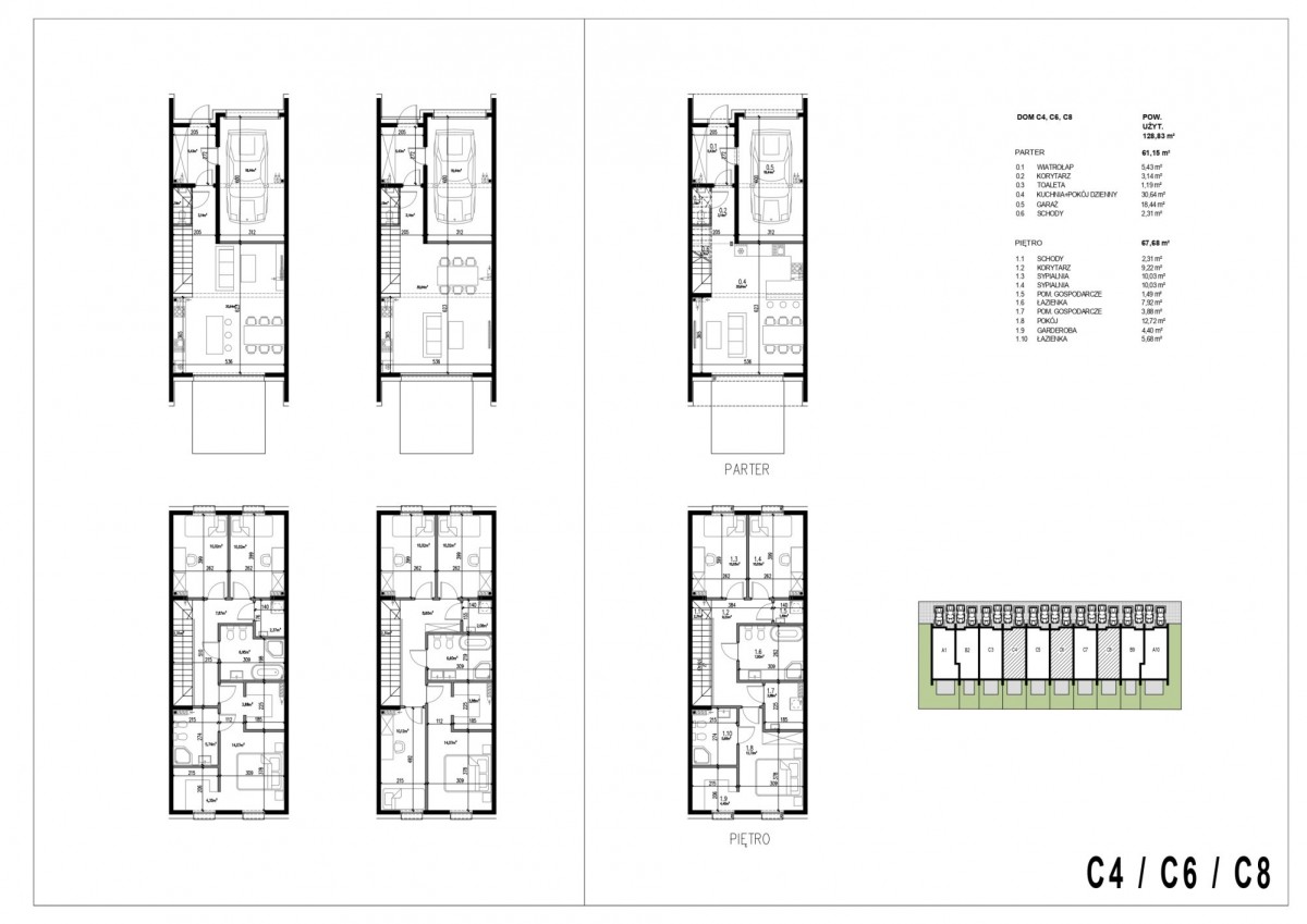
Wariant C (C3-C8) - 128,83 m² - oferowany
Komfortowe segmenty środkowe z trzema sypialniami, garderobą, pomieszczeniem gospodarczym i dwiema łazienkami.

Na tym etapie możliwość indywidualnych zmian i modyfikacji.

Każdy lokal posiada garaż jednostanowiskowy, dodatkowe miejsce postojowe, taras i prywatny ogródek.

Nowoczesne technologie i energooszczędność

Domy wyposażone są w:
• ogrzewanie podłogowe w całym budynku;
• instalację przygotowaną pod pompę ciepła;
• możliwość montażu paneli fotowoltaicznych;
• okna trzyszybowe i ocieplenie styropianem 20 cm;
• instalację do ładowania samochodu elektrycznego.

Zastosowane rozwiązania zapewniają wysoką efektywność energetyczną i niskie koszty utrzymania.

Lokalizacja:

Osiedle Solaris znajduje się w doskonałej lokalizacji:
• centrum Mikołowa - 550 m (6 minut pieszo);
• szkoła podstawowa - 850 m;
• przedszkole - 300 m;
• centrum handlowe - 1 km;
• szpital i dworzec PKP - 1,7 km;
• szybki dojazd do Katowic (16 km) i Tychów (11 km).

Cicha, spokojna okolica z zabudową jednorodzinną i pełną infrastrukturą miejską.

Parametry techniczne
• Rok rozpoczęcia budowy: 2025;
• Planowane zakończenie: 2026;
• Typ zabudowy: szeregowa, 2 kondygnacje;
• Materiały: pustak ceramiczny, strop żelbetowy typu filigran;
• Dach: płaski, papa termozgrzewalna;
• Media: prąd, woda, kanalizacja miejska;
• Ogrzewanie: podłogowe (pompa ciepła).

Atuty inwestycji Solaris


  • Nowoczesna architektura i funkcjonalne wnętrza;

  • Energooszczędne rozwiązania - pompa ciepła, fotowoltaika;

  • Garaż w bryle budynku i dodatkowe miejsce postojowe;

  • Taras i własny ogródek w każdym segmencie;

  • Bliskość centrum Mikołowa i pełnej infrastruktury;

  • Możliwość indywidualnej aranżacji wnętrza;

  • Cicha, spokojna okolica z szybkim dojazdem do głównych dróg.


Więcej informacji udzielimy telefonicznie. Zapraszamy również na spotkanie i prezentację.

Mapa
Kontakt z agentem

Białe Lwy - Nieruchomości

Białe Lwy - Nieruchomości
Nieprawidłowy adres E-mail

Strona korzysta z plików cookie w celu realizacji usług zgodnie z Polityką prywatności. Możesz określić warunki przechowywania lub dostępu do cookie w Twojej przeglądarce.