6 821 000,00 PLN (7 562,08 PLN)

Zabytkowy pałacyk z wieloma możliwościami

Dom (Dworek) na sprzedaż,
Łódź, Studencka

Kontakt z agentem: Białe Lwy - Nieruchomości
Białe Lwy - Nieruchomości
Opis nieruchomości

Mam przyjemność przedstawić państwu zabytkowy dworek z końca XIX wieku podłożowy w malowniczej okolicy w Łodzi przy ulicy Studenckiej.

To malownicze miejsce położone o kilka minut drogi od centrum miasta tworzy największy w Europie zwarty kompleks leśny, oferujący bez względu na porę roku, cisze i wypoczynek. Sieć turystycznych szlaków pieszych i rowerowych a także stawy na rzece Bzurze zachęcają do aktywnego i sportowego spędzania czasu. Na terenie parku w odległości 3 km od Pałacu można podziwiać XVIII - wieczny klasztor, gdzie latem organizowane są koncerty organowe, niecałe 10 km dzieli hotel od terenów Międzynarodowych Targów Łódzkich.


Aktualna funkcja: obiekt mieszkalno-pensjonatowy.

Pow. działki ogółem: 3919 mkw.


Powierzchnia budynku głównego łącznie 631 mkw (bez korytarzy i schodów).

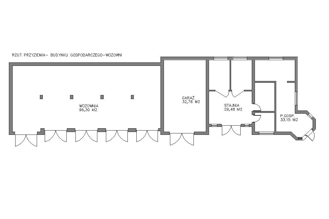
Powierzchnia budynku gospodarczego 271 mkw (w tym stróżówka, stajnia, warsztat z kanałem, 4 garaże, wozownia, strych użytkowy).

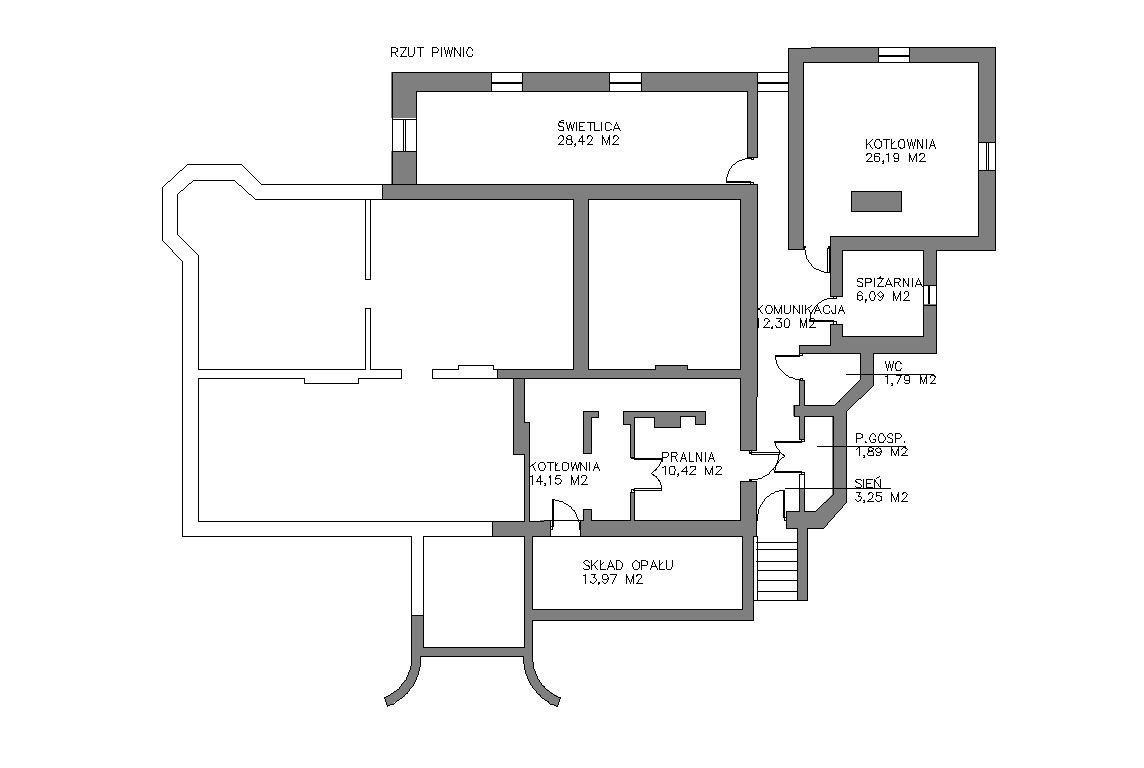
Opis ogólny: budynek częściowo podpiwniczony, ściany murowane z cegły palonej, stropy drewniane i żelbetowe, więźba dachowa drewno, pokrycie blacha ocynk i miedziana, Ogrzewanie: lokalne c-o, olej opałowy. 


Obiekt wpisany do rejestru zabytków (elewacja zewnętrzna).


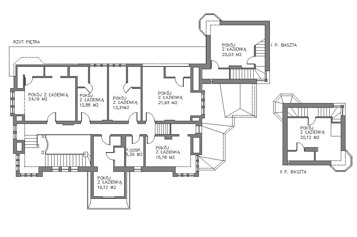
Budynek główny powstał ok. 1896 roku. Po zniszczeniach odbudowany w roku 1984, rekonstrukcja baszty w 1992 roku, obecnie posiada 15 pokoi gościnnych z węzłem sanitarnymi oraz, gabinet, salon, sypialnię, kuchnię, saunę, mini barek na najniższej kondygnacji, dwa pomieszczenia gospodarcze wewnątrz budynku z oknem, łazienkę, dwie oddzielne toalety.

Obiekt usytuowany jest w parku/lesie nad stawem cieku rzeki Bzury, bez sąsiedniej bezpośredniej zabudowy.

Dojazd do posesji oświetloną ulicą asfaltową, także komunikacją miejską.


Jeśli zainteresowała Państwa ta wyjątkowa nieruchomość  w fantastycznej okolicy, to zapraszam na prezentację!

Powyższa oferta ma charakter informacyjny i nie stanowi oferty handlowej w rozumieniu art. 66 §1 Kodeksu Cywilnego.

Mapa
Kontakt z agentem

Białe Lwy - Nieruchomości

Białe Lwy - Nieruchomości
Nieprawidłowy adres E-mail

Strona korzysta z plików cookie w celu realizacji usług zgodnie z Polityką prywatności. Możesz określić warunki przechowywania lub dostępu do cookie w Twojej przeglądarce.