Dom w otulinie lasu, z pięknym widokiem – Łętownia, gm. Jordanów
Dom jednorodzinny o powierzchni ok. 230 m² na dużej, widokowej działce o powierzchni 33,09 arów (3309 m²), położonej na skraju lasu, z pełną prywatnością i dostępem do natury.
Ogłoszenie zawiera dostęp do wirtualnego spaceru
Nieruchomość wyceniona przez rzeczoznawcę majątkowego na ponad 1,4 mln.
To idealna oferta dla osób szukających ucieczki od zgiełku miasta, ceniących ciszę, świeże powietrze i przestrzeń do życia – zarówno na co dzień, jak i rekreacyjnie.
Idealny dom aby zaadoptować go pod najem krótkoterminowy. Dojazd gminną drogą asfaltową.
Na działce dostępne media: prąd, woda, gaz. Teren w całości oznaczony jako grunty zabudowane oraz rolne i leśne z dopuszczeniem zabudowy.
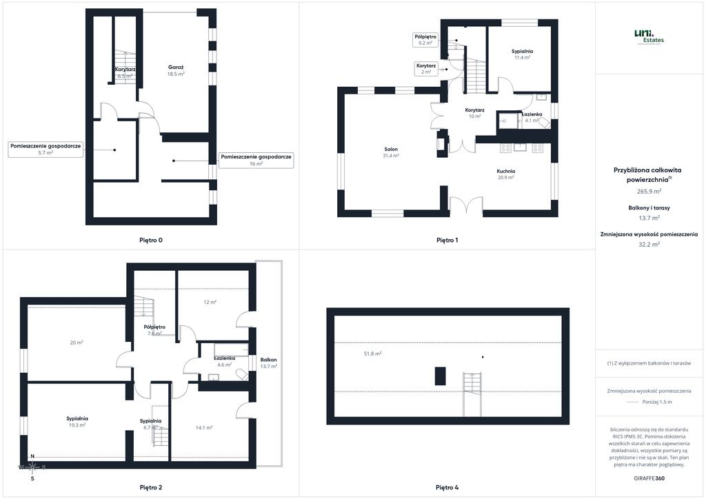
piwnica: garaż, 2 pomieszczenia gospodarcze, winnica,
Parter: kuchnia, salon, łazienka, pokój, przedpokój
Piętro: 4 pokoje
poddasze: duży pokój, możliwy do zaadoptowania
Dom z 2003 roku, murowany, dach dwuspadowy pokryty dachówką betonową, okna PCV, ogrzewanie gazowe,
Działka:
- 3309 m² — częściowo zalesiona, z dojrzałymi drzewami
- duży, zadbany ogród z miejscem na ognisko, hamak, plac zabaw
- pełna prywatność – brak sąsiadów na widoku
- teren w całości ogrodzony
- obok działki płynie rzeka
- na działce znajduje się budynek gospodarczy z ocieplonym poddaszem
Lokalizacja:
Łętownia to spokojna wieś w Beskidzie Makowskim, z pięknymi panoramami i dostępem do wielu szlaków pieszych i rowerowych.
W miejscowości: sklep, przystanek autobusowy, kościół, szkoła podstawowa.
W okolicy: Jordanów (10 min), Rabka-Zdrój (15 min), Sidzina, Bystra Podhalańska, a w 20 minut – Zakopianka (S7) i dogodny dojazd do Krakowa.
Komunikacja:
- droga gminna – bezpośredni dojazd
- przystanek autobusowy – ok. 300 m
- stacja kolejowa Jordanów – 10 min samochodem
- szybki dostęp do Zakopianki i trasy S7
Jestem otwarty na współpracę z innymi biurami. Zapraszam na prezentację.
Zapewniam wsparcie przy uzyskaniu kredytu oraz pomoc formalną.
Biuro nieruchomości pobiera prowizje przy zakupie.
Przedstawione ogłoszenie ma charakter wyłącznie informacyjny i nie stanowi oferty w rozumieniu art. 66 par. 1 Kodeksu cywilnego. Biuro Nieruchomości dokłada starań, aby treść ogłoszeń była rzetelna i aktualna, jednak nie ponosi odpowiedzialności za ewentualne nieścisłości, błędy lub nieaktualność ogłoszenia.
A house surrounded by a forest, with a beautiful view – Łętownia, Jordanów commune
A single-family house with an area of approx. 230 m² on a large, scenic plot of 33.09 ares (3,309 m²), located on the edge of the forest, with complete privacy and access to nature.
The ad includes access to a virtual tour
The property was valued by a property appraiser at over 1.4 million.
This is an ideal offer for people seeking an escape from the hustle and bustle of the city, who value peace, fresh air, and living space – both on a daily basis and for recreation.
This house is perfect for short-term rentals. Access is via a municipal paved road.
Utilities available on the plot include electricity, water, and gas. The entire area is designated as developed land, agricultural land, and forest land, with development permitted.
basement: garage, 2 utility rooms, vineyard,
Ground floor: kitchen, living room, bathroom, room, hall
First floor: 4 rooms
attic: large room, adaptable
House from 2003 , brick, gable roof covered with concrete tiles, PVC windows, gas heating,
Plot:
- 3309 m² - partly wooded, with mature trees
- large, well-kept garden with a fireplace, hammock, playground
- complete privacy - no neighbors in sight
- the area is completely fenced
- a river flows next to the plot
- there is an outbuilding with an insulated attic on the plot
Location:
Łętownia is a quiet village in the Beskid Makowski Mountains, with beautiful panoramas and access to many hiking and cycling trails.
In the village: shop, bus stop, church, primary school.
In the vicinity: Jordanów (10 min), Rabka-Zdrój (15 min), Sidzina, Bystra Podhalańska, and in 20 minutes - Zakopianka (S7) and convenient access to Krakow.
Communication:
- municipal road - direct access
- bus stop – approx. 300 m
- Jordanów railway station – 10 minutes by car
- quick access to Zakopianka and the S7 route
I'm open to collaboration with other offices. Please feel free to contact me for a presentation.
I provide support in obtaining a loan and formal assistance.
The real estate agency charges a commission on the purchase.
This announcement is for informational purposes only and does not constitute an offer within the meaning of Article 66, Section 1 of the Civil Code. The Real Estate Agency strives to ensure that the content of the announcements is accurate and up-to-date, but is not responsible for any inaccuracies, errors, or out-of-date nature of the announcement.
780 000,00 PLN (3 391,30 PLN)
Łętownia Las 33 ar 230 m² Okazja
Dom na sprzedaż,
Łętownia
Dane szczegółowe
- Typ transakcji: sprzedaż
- Typ nieruchomości: Dom
- Lokalizacja: Łętownia
- Powierzchnia:230 m2
- Liczba pokoi: 6
- Rok budowy: 2003
- Liczba pięter: 2
-
Powierzchnia działki:
3 304 m2
- Numer oferty: 34964520841
- Cena: 780 000,00 PLN
- Cena za m2: 3 391,30 PLN
Kontakt z agentem: Białe Lwy - Nieruchomości
Białe Lwy - Nieruchomości
Opis nieruchomości
Mapa
Kontakt z agentem
Białe Lwy - Nieruchomości