1 730 000,00 PLN (3 844,44 PLN)

Dworek z 1898 - zatwierdzony projekt remontu

Dom (Rezydencja) na sprzedaż,
Grodzisk Mazowiecki, Szczęsna

Kontakt z agentem: Białe Lwy - Nieruchomości
Opis nieruchomości

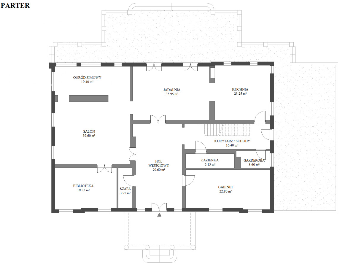
Stylowy dworek o powierzchni około 450 m² położony na działce 2790 m² w Grodzisku Mazowieckim. Budynek z końca XIX wieku oferuje około 10 pokoi oraz reprezentacyjny charakter historycznej rezydencji. Nieruchomość posiada zatwierdzony projekt remontu oraz przebudowy wraz z garażem podziemnym, uzgodniony z Mazowieckim Wojewódzkim Konserwatorem Zabytków.

CO WYRÓŻNIA TĘ NIERUCHOMOŚĆ

Największym atutem nieruchomości jest jej historyczny charakter oraz wyjątkowa architektura. Dworek znany jako „Józefina A” pochodzi prawdopodobnie z około 1898 roku i wyróżnia się klasycznym gankiem wspartym na czterech kolumnach toskańskich. Do głównego wejścia prowadzi stara aleja lipowa, która podkreśla reprezentacyjny charakter posesji. Na działce znajduje się również druga historyczna aleja lipowa biegnąca równolegle do osi dworku w kierunku południowym.

Dodatkową wartością jest decyzja konserwatora zabytków pozwalająca na prowadzenie prac remontowych i przebudowę budynku wraz z wykonaniem garażu podziemnego. Istnieje również możliwość uzyskania dotacji na prace konserwatorskie i remontowe związane z zabytkiem.

OPIS NIERUCHOMOŚCI

Budynek ma powierzchnię około 450 m² i składa się z dwóch głównych kondygnacji - parteru oraz piętra. Układ obejmuje około 10 pokoi oraz przestrzenie umożliwiające aranżację reprezentacyjnej części dziennej, gabinetów lub pomieszczeń usługowych.

W projekcie architektoniczno-budowlanym przewidziano również wykonanie garażu podziemnego. Dzięki dużej powierzchni i klasycznemu układowi wnętrz nieruchomość daje szerokie możliwości aranżacyjne - zarówno w funkcji mieszkalnej, jak i usługowej.

BUDYNEK / DZIAŁKA

Dworek posadowiony jest na działce o powierzchni około 2790 m². Teren posesji jest zadrzewiony i posiada historyczny układ alei lipowych prowadzących do budynku. Działka ma regularny kształt i dostęp do wszystkich mediów.

Budynek wykonany jest z cegły i wymaga przeprowadzenia prac remontowych zgodnie z zatwierdzonym projektem. Wysokość pomieszczeń wynosi około 3 m, co podkreśla reprezentacyjny charakter wnętrz.

LOKALIZACJA I OTOCZENIE

Nieruchomość znajduje się w Grodzisku Mazowieckim przy ulicy Szczęsnej, w spokojnej części miasta o charakterze willowym. Lokalizacja zapewnia dogodny dojazd do Warszawy, który zajmuje około 40 minut samochodem.

W najbliższej okolicy znajdują się zabudowa jednorodzinna, tereny zielone oraz infrastruktura miejska pozwalająca na wygodne funkcjonowanie na co dzień.

DLA KOGO TA NIERUCHOMOŚĆ

Nieruchomość może być atrakcyjną propozycją dla osób poszukujących reprezentacyjnej rezydencji do własnej aranżacji. Ze względu na charakter budynku oraz jego układ może pełnić funkcję prywatnej siedziby, kameralnej kliniki, kancelarii, siedziby firmy lub innej działalności wymagającej prestiżowej przestrzeni.

INFORMACJE FORMALNE

Decyzją Mazowieckiego Wojewódzkiego Konserwatora Zabytków z 2026 roku wydano pozwolenie na prowadzenie robót budowlanych obejmujących remont, przebudowę oraz wykonanie garażu podziemnego zgodnie z przygotowanym projektem architektoniczno-budowlanym.

Podatek od nieruchomości wynosi obecnie 0 zł. Istnieje możliwość ubiegania się o dotację na prace remontowe i konserwatorskie z Ministerstwa Kultury i Dziedzictwa Narodowego lub od wojewódzkiego konserwatora zabytków - co do zasady do około 50% nakładów koniecznych. Odrębną ścieżką jest możliwość ubiegania się o wsparcie ze strony jednostek samorządu terytorialnego, gdzie w zależności od lokalnych uchwał poziom dofinansowania może sięgać nawet 100% kosztów kwalifikowanych.

Zapraszam do kontaktu w celu uzyskania dodatkowych informacji oraz umówienia prezentacji nieruchomości.

---------------

Residence 10 rooms | Grodzisk Maz. | 2790 m² plot

A stylish manor house of approximately 450 m² located on a 2790 m² plot in Grodzisk Mazowiecki. The residence dates back to the late 19th century and offers around 10 rooms with a classic architectural character. The property has an approved renovation and reconstruction project including the construction of an underground garage, authorized by the Mazovian Voivodeship Conservator of Monuments.

CO WYRÓŻNIA TĘ NIERUCHOMOŚĆ

The greatest value of the property is its historic character and distinctive architecture. The manor known as “Józefina A” most likely dates back to around 1898 and features a representative porch supported by four Tuscan columns.

A historic lime-tree avenue leads to the main entrance of the manor. A second, equally old avenue of lime trees runs parallel to the longitudinal axis of the residence towards the south, creating a unique and prestigious landscape composition.

An additional advantage is the official permission to carry out renovation and reconstruction works, including the construction of an underground garage. There is also the possibility of obtaining public grants for conservation and renovation works related to historic properties.

PROPERTY DESCRIPTION

The building has a total area of approximately and consists of two main floors - the ground floor and the first floor. The layout includes approximately 10 rooms and spaces suitable for creating representative living areas, offices or service spaces.

The architectural design also provides for the construction of an underground garage. Due to its size and classical layout, the property offers a wide range of possible uses, including residential or commercial purposes.

BUILDING / PLOT

The manor house is situated on a plot of approximately 2790 m². The property is surrounded by mature greenery and historic lime-tree avenues leading to the building. The plot has a regular shape and access to all utilities.

The building is constructed of brick and requires renovation works according to the approved architectural design. Ceiling heights reach approximately 3 meters, emphasizing the representative character of the interiors.

LOCATION AND SURROUNDINGS

The property is located in Grodzisk Mazowiecki on Szczęsna Street, in a quiet residential area with predominantly single-family housing. The location provides convenient access to Warsaw, with a travel time of approximately 40 minutes by car.

Nearby there are green areas, residential buildings and urban infrastructure that allows comfortable daily living.

WHO IS THIS PROPERTY FOR

This property may be an attractive option for buyers looking for a representative residence with historical value and renovation potential. The building may serve as a private residence, boutique clinic, law office, company headquarters or other activity requiring a prestigious location and spacious interiors.

FORMAL INFORMATION

The building of approximately 450 m² is located on a plot of approximately 2790 m². The manor dates back to the late 19th century and requires renovation.

By decision of the Mazovian Voivodeship Conservator of Monuments from 2026, permission was granted to carry out construction works including renovation, reconstruction and construction of an underground garage based on the approved architectural design.

The property tax currently amounts to 0 PLN.

There is also the possibility of applying for grants from the Ministry of Culture and National Heritage or from the regional monument conservator, which generally may cover up to 50% of necessary renovation costs.

Additionally, funding may also be obtained from local government authorities depending on local regulations. In some cases the level of support may reach up to 100% of eligible renovation costs.

Detailed information regarding available grants can be provided to interested parties.

Please contact us for additional information or to arrange a viewing of the property.

-------------------------


Резиденція 10 кімнат | Гродзиськ Маз. | ділянка 2790 м²


Стильний історичний маєток площею близько 450 м² розташований на ділянці 2790 м² у місті Гродзиськ Мазовецький. Будівля походить з кінця XIX століття та має приблизно 10 кімнат і класичний архітектурний характер. Для об’єкта затверджено проєкт реконструкції та ремонту разом із будівництвом підземного гаража.

ЩО ВИДІЛЯЄ ЦЮ НЕРУХОМІСТЬ

Найбільшою перевагою об’єкта є його історичний характер і унікальна архітектура. Маєток, відомий як “Józefina A”, імовірно був збудований близько 1898 року та має представницький ґанок, що спирається на чотири тосканські колони.

До головного входу веде стара липова алея. Паралельно до поздовжньої осі будинку на південь проходить друга, також історична алея лип, яка створює особливу атмосферу та підкреслює престиж цієї нерухомості.

Додатковою перевагою є дозвіл на проведення ремонтних та будівельних робіт, включно зі створенням підземного гаража. Існує також можливість отримання державних дотацій на реставраційні роботи.

ОПИС НЕРУХОМОСТІ

Будівля має площу приблизно 450 м² і складається з двох основних поверхів - першого поверху та другого поверху. Планування включає приблизно 10 кімнат і дозволяє облаштувати як житлову частину, так і офісні чи комерційні приміщення.

Архітектурний проєкт передбачає також будівництво підземного гаража. Завдяки великій площі та класичному плануванню будівля має широкий потенціал використання.

БУДИНОК ТА ДІЛЯНКА

Маєток розташований на ділянці приблизно 2790 м². Територія озеленена та має історичні липові алеї, що ведуть до будівлі. Ділянка має правильну форму та підключена до всіх комунікацій.

Будівля цегляна та потребує проведення ремонтних робіт відповідно до затвердженого архітектурного проєкту. Висота приміщень становить приблизно 3 метри.

ЛОКАЦІЯ ТА ОТОЧЕННЯ

Нерухомість розташована у місті Гродзиськ Мазовецький на вулиці Szczęsna у спокійній житловій частині міста. Поїздка до Варшави займає приблизно 40 хвилин автомобілем.

Поруч знаходяться зелені зони, житлова забудова та міська інфраструктура.

ДЛЯ КОГО ЦЯ НЕРУХОМІСТЬ

Об’єкт може бути цікавим для осіб, які шукають представницьку історичну резиденцію з великим потенціалом реконструкції. Будівля може використовуватися як приватна резиденція, медична клініка, офіс компанії, юридична канцелярія або інший престижний бізнес.

ФОРМАЛЬНА ІНФОРМАЦІЯ

Будинок площею приблизно 450 м² розташований на ділянці приблизно 2790 м². Маєток походить з кінця XIX століття та потребує ремонту.

Рішенням Мазовецького воєводського консерватора пам’яток з 2026 року надано дозвіл на проведення будівельних робіт, включаючи ремонт, реконструкцію та будівництво підземного гаража відповідно до затвердженого архітектурного проєкту.

Податок на нерухомість наразі становить 0 злотих.

Також існує можливість отримання фінансування від Міністерства культури та національної спадщини або від воєводського консерватора пам’яток. Зазвичай таке фінансування може покривати до 50% необхідних витрат.

Окремо можна подавати заявку на фінансування від органів місцевого самоврядування, де рівень підтримки може досягати навіть 100% витрат.

Детальнішу інформацію щодо можливих дотацій можна надати зацікавленим особам.

Будь ласка, зв’яжіться для отримання додаткової інформації або організації перегляду.

Zapraszamy do zapoznania się z ofertą domu na sprzedaż.

Jeżeli poszukujesz innego domu na sprzedaż, skontaktuj się z nami. Współpracujemy z wieloma biurami nieruchomości oraz agencjami w całej Polsce, dzięki czemu nasi doradcy mają dostęp do szerokiej bazy ofert nieruchomości na sprzedaż - w tym również do domów, które nie zostały jeszcze opublikowane na portalach ogłoszeniowych. Pozwala to skuteczniej dopasować ofertę do indywidualnych potrzeb, budżetu oraz stylu życia.

Rozważasz sprzedaż podobnej nieruchomości i chcesz sprawdzić aktualne warunki rynkowe? Skontaktuj się z doradcą wskazanym przy ofercie. Pomożemy w określeniu realnej ceny, przygotowaniu domu do sprzedaży oraz zaplanowaniu odpowiedniej strategii marketingowej.

Kupno, sprzedaż i wynajem nieruchomości to proces wymagający doświadczenia i dobrej organizacji. W ramach świadczonych usług oferujemy kompleksową obsługę transakcji - od przygotowania nieruchomości do sprzedaży, przez profesjonalną prezentację (home staging, sesje fotograficzne, rzuty i plany), po aktywną promocję ofert na największych portalach nieruchomości, stronach internetowych oraz w systemach MLS. Stosujemy także działania offline, takie jak banery informacyjne czy dni otwarte.

Wspieramy naszych klientów na każdym etapie procesu sprzedaży, zakupu lub wynajmu nieruchomości - prowadzimy negocjacje, pomagamy w analizie dokumentów oraz dbamy o bezpieczeństwo transakcji i prawidłowe zapisy umowne.

Jeżeli zakup nieruchomości planowany jest z wykorzystaniem kredytu hipotecznego, zapewniamy również wsparcie w tym zakresie, współpracując z wieloma bankami i instytucjami finansowymi.

Potrzebujesz więcej informacji lub wsparcia przy transakcji? Skontaktuj się z doradcą wskazanym przy ofercie.

Residence 10 rooms | Grodzisk Maz. | 2790 m² plot

A stylish manor house of approximately 450 m² located on a 2790 m² plot in Grodzisk Mazowiecki. The residence dates back to the late 19th century and offers around 10 rooms with a classic architectural character. The property has an approved renovation and reconstruction project including the construction of an underground garage, authorized by the Mazovian Voivodeship Conservator of Monuments.

CO WYRÓŻNIA TĘ NIERUCHOMOŚĆ

The greatest value of the property is its historic character and distinctive architecture. The manor known as “Józefina A” most likely dates back to around 1898 and features a representative porch supported by four Tuscan columns.

A historic lime-tree avenue leads to the main entrance of the manor. A second, equally old avenue of lime trees runs parallel to the longitudinal axis of the residence towards the south, creating a unique and prestigious landscape composition.

An additional advantage is the official permission to carry out renovation and reconstruction works, including the construction of an underground garage. There is also the possibility of obtaining public grants for conservation and renovation works related to historic properties.

PROPERTY DESCRIPTION

The building has a total area of approximately and consists of two main floors - the ground floor and the first floor. The layout includes approximately 10 rooms and spaces suitable for creating representative living areas, offices or service spaces.

The architectural design also provides for the construction of an underground garage. Due to its size and classical layout, the property offers a wide range of possible uses, including residential or commercial purposes.

BUILDING / PLOT

The manor house is situated on a plot of approximately 2790 m². The property is surrounded by mature greenery and historic lime-tree avenues leading to the building. The plot has a regular shape and access to all utilities.

The building is constructed of brick and requires renovation works according to the approved architectural design. Ceiling heights reach approximately 3 meters, emphasizing the representative character of the interiors.

LOCATION AND SURROUNDINGS

The property is located in Grodzisk Mazowiecki on Szczęsna Street, in a quiet residential area with predominantly single-family housing. The location provides convenient access to Warsaw, with a travel time of approximately 40 minutes by car.

Nearby there are green areas, residential buildings and urban infrastructure that allows comfortable daily living.

WHO IS THIS PROPERTY FOR

This property may be an attractive option for buyers looking for a representative residence with historical value and renovation potential. The building may serve as a private residence, boutique clinic, law office, company headquarters or other activity requiring a prestigious location and spacious interiors.

FORMAL INFORMATION

The building of approximately 450 m² is located on a plot of approximately 2790 m². The manor dates back to the late 19th century and requires renovation.

By decision of the Mazovian Voivodeship Conservator of Monuments from 2026, permission was granted to carry out construction works including renovation, reconstruction and construction of an underground garage based on the approved architectural design.

The property tax currently amounts to 0 PLN.

There is also the possibility of applying for grants from the Ministry of Culture and National Heritage or from the regional monument conservator, which generally may cover up to 50% of necessary renovation costs.

Additionally, funding may also be obtained from local government authorities depending on local regulations. In some cases the level of support may reach up to 100% of eligible renovation costs.

Detailed information regarding available grants can be provided to interested parties.

Please contact us for additional information or to arrange a viewing of the property.

Plany Nieruchomości
Kontakt z agentem

Białe Lwy - Nieruchomości

Maria Krycka
Nieprawidłowy adres E-mail

Strona korzysta z plików cookie w celu realizacji usług zgodnie z Polityką prywatności. Możesz określić warunki przechowywania lub dostępu do cookie w Twojej przeglądarce.