1 349 000,00 PLN (17 422,19 PLN)

4 pokojowe mieszkanie z ogródkiem i miejscem post.

Mieszkanie na sprzedaż,
Kraków, Walerego Sławka

Kontakt z agentem: Białe Lwy - Nieruchomości
Białe Lwy - Nieruchomości
Opis nieruchomości

Komfort i styl blisko centrum | Lokum Vista | 4 pokoje z ogródkiem i miejscem postojowym | 77 m² - Wola Duchacka, ul. Walerego Sławka

Na sprzedaż wyjątkowe, 4-pokojowe mieszkanie z ogródkiem, położone w popularnej inwestycji Lokum Vista przy ul. Walerego Sławka w Krakowie.
To propozycja dla osób, które cenią nowoczesność, wygodę i świetną lokalizację - zaledwie kilkanaście minut od centrum, a jednocześnie w otoczeniu zieleni i spokoju.


Mieszkanie:
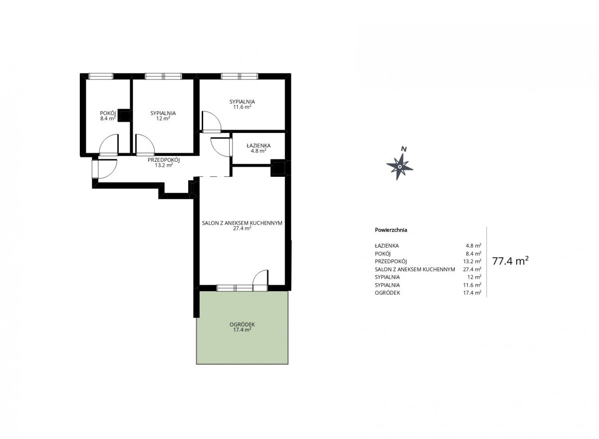
Powierzchnia: 77,43 m²
Piętro: parter
Wysokość pomieszczeń: 3,15 m
Stan: idealny - do wejścia, bez żadnych nakładów finansowych

Układ i wyposażenie:


  • Przestronny salon z aneksem kuchennym - 27,36 m²  i wyjściem na kameralny ogródek o powierzchni 17 m² 

  • Trzy sypialnie - 12,08 m², 11,61 m² oraz 8,4 m²,

  • Łazienka z wanną - 4,79 m²,

  • Hol z pojemnymi szafami w zabudowie 13,19 m².


Atuty nieruchomości:


  • Klimatyzacja w salonie i głównej sypialni,

  • Nowoczesne wykończenie oraz stylowe wyposażenie, większość mebli zrobione na wymiar,

  • Panele i gres wysokiej jakości,

  • Wysokie stropy - 3,15 m zapewniają przestrzeń i komfort,

  • Dwustronna ekspozycja północ (od strony sypialni) oraz południe (od strony salonu i ogródka) - doskonałe doświetlenie i przewiewność wnętrz,

  • Przynależny ogródek -  idealne miejsce na poranną kawę, popołudniowy relaks czy letnie spotkania z rodziną.

  • Zewnętrzne rolety okienne zapewniające prywatność,

  • Miejsce postojowe w hali garażowej (dodatkowo płatne).



Budynek:
Nowoczesne osiedle z 2023 roku, stworzone z myślą o komforcie mieszkańców.
Na terenie kompleksu znajdują się:


  • plac zabaw,

  • sklep Żabka, sklep monopolowy,

  • przedszkole i żłobek,

  • przystanek autobusowy tuż obok.



W kilka minut pieszo można dotrzeć do Bonarka City Center - jednego z największych centrów handlowych w Krakowie, z bogatą ofertą sklepów, restauracji i kinem.
Położenie osiedla łączy miejską wygodę z ciszą i prywatnością.


Lokalizacja:

Mieszkanie znajduje się w południowej części Krakowa, w doskonale skomunikowanej i dynamicznie rozwijającej się dzielnicy Wola Duchacka.

Otoczenie i infrastruktura:


  • Bonarka City Center - zaledwie 10-15 minut spacerem; ponad 200 sklepów, restauracje i kawiarnie, kino, siłownia

  • Przystanki autobusowe w bezpośrednim sąsiedztwie - szybki dojazd do centrum i innych dzielnic,

  • przystanek kolejowy Kraków-Bonarka w odległości 1,5 km, 

  • W okolicy liczne sklepy spożywcze, przedszkola, żłobki, szkoły i punkty usługowe,

  • Dogodny wyjazd na obwodnicę Krakowa i autostradę A4



Tereny zielone i miejsca na spacery:


  • Park Duchacki - urokliwy park miejski z alejkami, stawem i placem zabaw, idealny na spacery z rodziną, psem lub jogging (ok. 7 min pieszo)

  • Bulwary na Wilgii i zielone skwery w rejonie Bonarki 

  • W okolicy znajdziesz również liczne ścieżki piesze i rowerowe prowadzące w stronę Łagiewnik i Parku Solvay


Połączenie miejskiej infrastruktury i bliskości natury tworzy tu idealny city-life balance - wszystko, czego potrzebujesz, jest w zasięgu kilku minut.


Cena:
1 349 000 zł - mieszkanie z większością wyposażenia,
60 000 zł - miejsce postojowe


To mieszkanie to harmonijne połączenie komfortu, funkcjonalności i świetnej lokalizacji.
Idealne zarówno dla rodzin, jak i dla osób szukających przestronnego apartamentu blisko centrum.

Zadzwoń i umów się na prezentację - to miejsce warto zobaczyć na żywo!


ENG:
Comfort and Style Close to the City Centre | Lokum Vista | 4 Rooms with Garden and Parking Space | 77 m² - Wola Duchacka, Walerego Sławka Street

For sale: a unique four-room apartment with a private garden, located in the popular Lokum Vista development on Walerego Sławka street in Kraków.
This is an excellent offer for those who value modern design, comfort, and a great location - just a few minutes from the city centre, yet surrounded by greenery and peace.


The Apartment:
Area: 77.43 m²
Floor: Ground floor
Ceiling height: 3.15 m
Condition: Perfect - ready to move in, no additional costs

Layout and features:


  • Spacious living room with kitchenette (27.36 m²) and access to a private garden (17 m²)

  • Three bedrooms: 12.08 m², 11.61 m², and 8.4 m²

  • Bathroom with bathtub - 4.79 m²

  • Hallway with large built-in wardrobes - 13.19 m²


Property highlights:


  • Air conditioning in the living room and master bedroom,

  • Modern finish and stylish furnishings, with most of the furniture custom-made,

  • High-quality floor - panels and gres tiles,

  • High ceilings (3.15 m) for extra space and comfort,

  • Dual aspect exposure: north (bedrooms) and south (living room and garden) - excellent light and ventilation,

  • Private garden - perfect for morning coffee, afternoon relaxation, or summer gatherings with family and friends,

  • External window blinds providing privacy,

  • Parking space in the underground garage (additional cost).




The Building:

A modern residential complex completed in 2023, designed with residents’ comfort in mind.
On-site amenities include:


  • Children’s playground

  • Żabka convenience store and the liquor store,

  • Kindergarden and nursery,

  • Bus stop right next to the building


Within just a few minutes’ walk, you’ll reach Bonarka City Center - one of Kraków’s largest shopping malls, offering a wide range of shops, restaurants, a cinema, and fitness facilities.
The location combines urban convenience with privacy and tranquility.


Location - Wola Duchacka, Kraków

Situated in the southern part of Kraków, in the well-connected and rapidly developing district of Wola Duchacka.

Surroundings and infrastructure:


  • Bonarka City Center - 10-15 minutes on foot; over 200 shops, restaurants, cafes, cinema, gym

  • Bus stops nearby - quick and convenient access to the city centre and other districts

  • Train stop Kraków-Bonarka located 1,5 km away,

  • Numerous grocery stores, preschools, nurseries, schools, and service points in the area

  • Easy access to the Kraków ring road and A4 motorway


Green areas and recreation:


  • Park Duchacki - a charming municipal park with walking paths, a pond, and a playground - ideal for family walks, jogging, or dog walking (approx. 7 minutes on foot)

  • Wilga River boulevards and small green squares around Bonarka - perfect for short strolls

  • Numerous walking and cycling paths leading towards Łagiewniki and Solvay Park



The combination of urban infrastructure and proximity to nature creates the perfect city-life balance - everything you need is within easy reach.

Price:
1,349,000 PLN - apartment with most furniture included
60,000 PLN - parking space in the underground garage


This apartment offers a balanced mix of space, style, and convenience - ideal both for families and for those seeking a spacious home close to the city centre.

Call now to schedule a viewing - this is a place worth seeing in person!

Plan Nieruchomości
Mapa
Kontakt z agentem

Białe Lwy - Nieruchomości

Białe Lwy - Nieruchomości
Nieprawidłowy adres E-mail

Strona korzysta z plików cookie w celu realizacji usług zgodnie z Polityką prywatności. Możesz określić warunki przechowywania lub dostępu do cookie w Twojej przeglądarce.